Breland & Farmer Home Designs
Home
Advanced House Plan Search
Architectural Styles
House Plan Collections
About Us
Contact Us
Sign Up
Log In
Breland & Farmer Home Designs
Log In
|
Register
|
Cart
Place your order by phone and receive a 20% discount:
(800) 662-8262
Breland & Farmer Home Designs
Home
Advanced Search
Architectural Styles
Our Collections
About Us
Contact Us
Plan Details
|
Save Plan
|
Print Plan
|
Modify Plan
|
Reverse Plan
|
Return to Your Search
Details
|
Save
|
See Reverse
|
3D
|
Modify
|
Back to Search
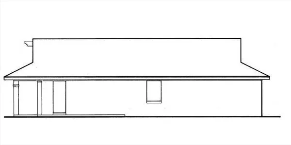
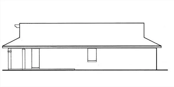
See all 8 photos and rear view
Photographs may reflect modified homes
© copyright by designer
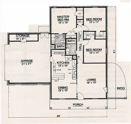
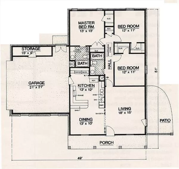
Plan: 1204 Sweetwater - 1204
Plan Specification
Total Square Footage:
1,288
Bedrooms:
3
Baths:
2 Half: 0
Garages:
2
Width/Depth:
49 ft / 51 ft
Foundation:
Concrete Slab Foundation, Crawlspac
View typical construction drawing >
© copyright by designer
Floor Plan:
Similar plans:
1304
,
1305
Add to Favorites
Purchase Plans
House Plan Pricing
PDF BID SET
$700.00
PDF Construction Set - 1 Build
$900.00
4 sets
$1,005.00
5 sets
$1,050.00
8 sets
$1,110.00
Cad Files
$1,600.00
More details about our plan packages
Foundation Options
Concrete Slab Foundation
$0.00
Crawlspac
$150.00
Additional Plan Options
ADD PDF TO PRINT ORDER
$125.00
Materials List
$90.00
Additional copies of materials list
$15.00
Mirror Reverse Set
$90.00
Plan Details
General House Information
1
Number of Stories:
49' 0"
Width:
51' 0"
Depth:
Single
Dwelling Number:
Exterior Style
Old House Classics
T Shaped
Cottage
Country
Traditional
Facade
Brick
Siding
Number of Rooms
3
Bedrooms:
2
Full Baths:
Finished Square Footage
1,288 Sq. Ft.
Total:
Unfinished Square Footage
441 Sq. Ft.
Garage:
84 Sq. Ft.
Storage:
140 Sq. Ft.
Porch:
GARAGE
Side
Garage Location:
2
Garage Size:
Foundation
Concrete Slab Foundation
Crawlspac
House And Ceiling Heights
8
First Floor Ceiling:
22' 0"
Maximum House Height:
Framing Information
Stick
Roof Framing:
2x4
Exterior Wall Framing:
Roof Pitch
6/12
Primary:
Insulation (R)
11
Exterior Wall:
0
Interior Wall:
19
Ceiling:
19
Floor:
Number of Rooms
3
Bedrooms:
2
Full Baths:
Key Features
• Attached
• Covered Front Porch
• Crawlspace
• Great Room
• Nook / Breakfast Area
• Side-entry
• Slab
• Storage Space
• Suited for corner lot
• Suited for narrow lot
• Walk-in Closet
Plan: 1204, 1 story, 1,288 total square footage
Close