Breland & Farmer Home Designs
Home
Advanced House Plan Search
Architectural Styles
House Plan Collections
About Us
Contact Us
Sign Up
Log In
Breland & Farmer Home Designs
Log In
|
Register
|
Cart
Place your order by phone and receive a 20% discount:
(800) 662-8262
Breland & Farmer Home Designs
Home
Advanced Search
Architectural Styles
Our Collections
About Us
Contact Us
Plan Details
|
Save Plan
|
Print Plan
|
Modify Plan
|
Reverse Plan
|
Return to Your Search
Details
|
Save
|
See Reverse
|
3D
|
Modify
|
Back to Search
See all 8 photos and rear view
Photographs may reflect modified homes
© copyright by designer
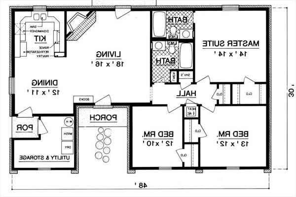
Plan: 1214 Sanderville - 1214
Plan Specification
Total Square Footage:
1,200
Bedrooms:
3
Baths:
2 Half: 0
Garages:
0
Width/Depth:
48 ft / 30 ft
Foundation:
Concrete Slab Foundation, Crawlspac
View typical construction drawing >
© copyright by designer
Floor Plan:
Similar plans:
1104
,
1213
Add to Favorites
Purchase Plans
House Plan Pricing
PDF BID SET
$700.00
PDF Construction Set - 1 Build
$900.00
4 sets
$1,005.00
5 sets
$1,050.00
8 sets
$1,110.00
Cad Files
$1,600.00
More details about our plan packages
Foundation Options
Concrete Slab Foundation
$0.00
Crawlspac
$150.00
Additional Plan Options
ADD PDF TO PRINT ORDER
$125.00
Materials List
$90.00
Additional copies of materials list
$15.00
Mirror Reverse Set
$90.00
Plan Details
General House Information
1
Number of Stories:
48' 0"
Width:
30' 0"
Depth:
Single
Dwelling Number:
Exterior Style
Mountain
Old House Classics
Contemporary
Facade
Brick
Siding
Number of Rooms
3
Bedrooms:
2
Full Baths:
Finished Square Footage
1,200 Sq. Ft.
Total:
Unfinished Square Footage
160 Sq. Ft.
Storage:
GARAGE
0
Garage Size:
Foundation
Concrete Slab Foundation
Crawlspac
House And Ceiling Heights
8
First Floor Ceiling:
19' 0"
Maximum House Height:
Framing Information
Stick
Roof Framing:
2x6
Exterior Wall Framing:
Roof Pitch
7/12
Primary:
Insulation (R)
19
Exterior Wall:
0
Interior Wall:
38
Ceiling:
19
Floor:
Number of Rooms
3
Bedrooms:
2
Full Baths:
Key Features
• Crawlspace
• None
• Slab
• Suited for narrow lot
Plan: 1214, 1 story, 1,200 total square footage
Close