Breland & Farmer Home Designs
Home
Advanced House Plan Search
Architectural Styles
House Plan Collections
About Us
Contact Us
Sign Up
Log In
Breland & Farmer Home Designs
Log In
|
Register
|
Cart
Place your order by phone and receive a 20% discount:
(800) 662-8262
Breland & Farmer Home Designs
Home
Advanced Search
Architectural Styles
Our Collections
About Us
Contact Us
Plan Details
|
Save Plan
|
Print Plan
|
Modify Plan
|
Reverse Plan
|
Return to Your Search
Details
|
Save
|
See Reverse
|
3D
|
Modify
|
Back to Search
See all 11 photos and rear view
Photographs may reflect modified homes
© copyright by designer
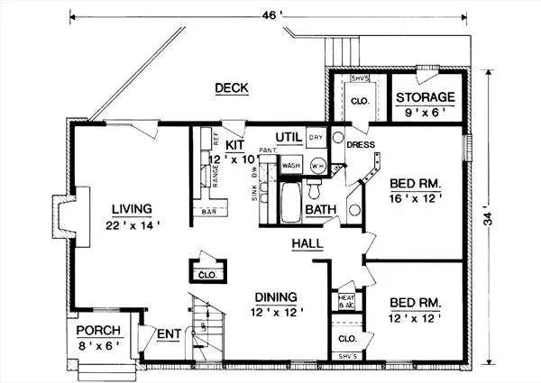
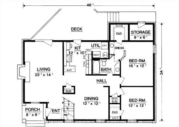
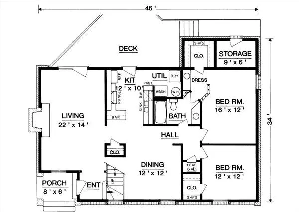
Plan: 1215 Chestwood - 1215
Plan Specification
Total Square Footage:
1,282
Bonus:
644
Bedrooms:
4
Baths:
2 Half: 0
Garages:
0
Width/Depth:
46 ft / 34 ft
Foundation:
Crawl Space Foundation, Optional Basement Foundation, Optional Concrete Slab Foundation
View typical construction drawing >
© copyright by designer
First Floor Plan:
© copyright by designer
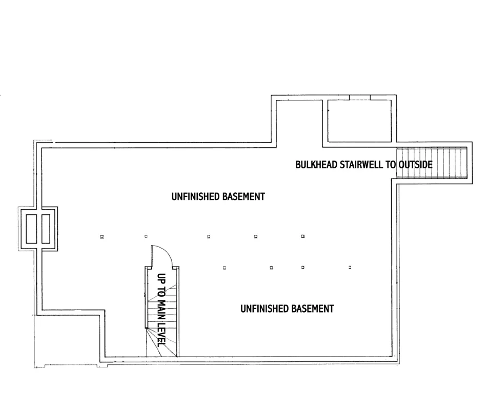
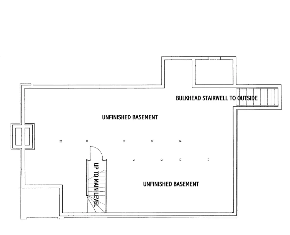
Future Expansion Space:
© copyright by designer
Optional Basement Foundation:
Similar plans:
1205
,
1204
Add to Favorites
Purchase Plans
House Plan Pricing
PDF BID SET
$700.00
PDF Construction Set - 1 Build
$900.00
4 sets
$1,005.00
5 sets
$1,050.00
8 sets
$1,110.00
Cad Files
$1,600.00
More details about our plan packages
Foundation Options
Crawl Space Foundation
$0.00
Optional Basement Foundation
$150.00
Optional Concrete Slab Foundation
$150.00
Additional Plan Options
ADD PDF TO PRINT ORDER
$125.00
Materials List
$90.00
Additional copies of materials list
$15.00
Mirror Reverse Set
$90.00
Plan Details
General House Information
1.5
Number of Stories:
46' 0"
Width:
34' 0"
Depth:
Single
Dwelling Number:
Exterior Style
Old House Classics
Cape Cod
Cottage
Farmhouse
Facade
Brick
Siding
Number of Rooms
4
Bedrooms:
2
Full Baths:
Finished Square Footage
1,282 Sq. Ft.
Total:
Unfinished Square Footage
54 Sq. Ft.
Storage:
48 Sq. Ft.
Porch:
644 Sq. Ft.
Bonus Room:
GARAGE
0
Garage Size:
Foundation
Crawl Space Foundation
Optional Basement Foundation
Optional Concrete Slab Foundation
House And Ceiling Heights
8
First Floor Ceiling:
8
Second Floor Ceiling:
26' 0"
Maximum House Height:
Framing Information
Stick
Roof Framing:
2x6
Exterior Wall Framing:
Roof Pitch
10/12
Primary:
Insulation (R)
19
Exterior Wall:
0
Interior Wall:
38
Ceiling:
19
Floor:
Number of Rooms
4
Bedrooms:
2
Full Baths:
Key Features
• Basement
• Crawlspace
• None
• Slab
• Suited for narrow lot
Plan: 1215, 1.5 story, 1,282 total square footage
Close