Breland & Farmer Home Designs
Home
Advanced House Plan Search
Architectural Styles
House Plan Collections
About Us
Contact Us
Sign Up
Log In
Breland & Farmer Home Designs
Log In
|
Register
|
Cart
Place your order by phone and receive a 20% discount:
(800) 662-8262
Breland & Farmer Home Designs
Home
Advanced Search
Architectural Styles
Our Collections
About Us
Contact Us
Plan Details
|
Save Plan
|
Print Plan
|
Modify Plan
|
Reverse Plan
|
Return to Your Search
Details
|
Save
|
See Reverse
|
3D
|
Modify
|
Back to Search
See all 11 photos and rear view
Photographs may reflect modified homes
© copyright by designer
Plan: 1723 Shady Oaks Manor - 1723
Plan Specification
Total Square Footage:
1,775
Main Level:
1,253
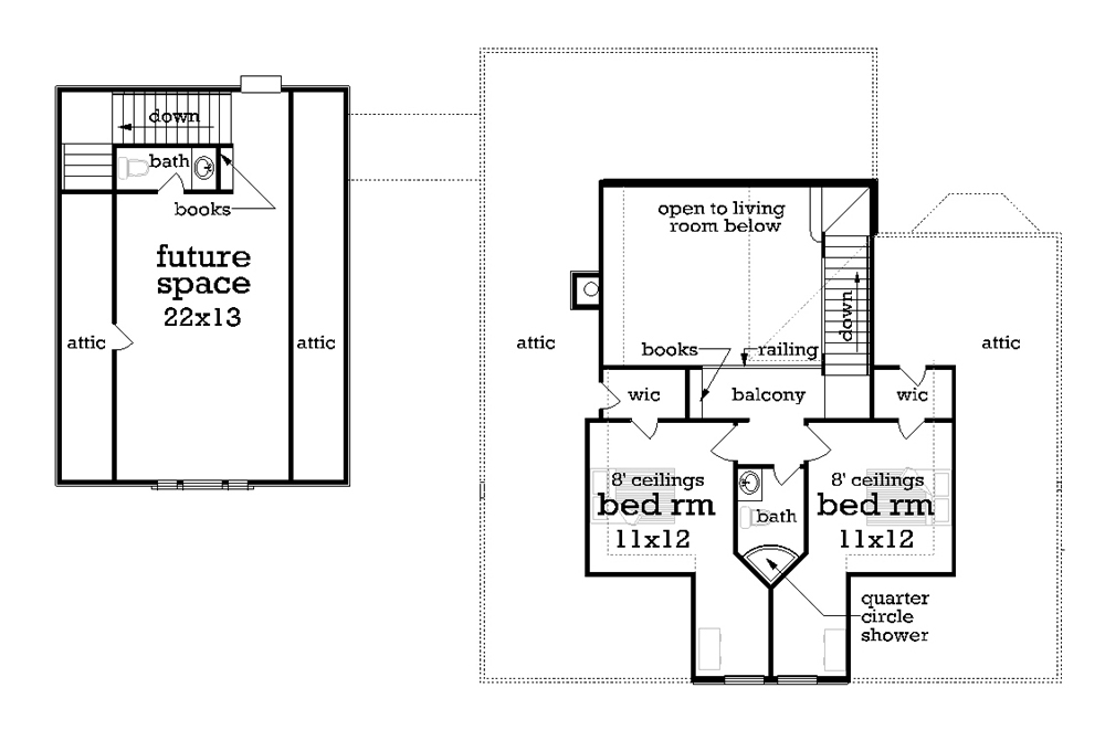
Second Level:
522
Bonus:
369
Bedrooms:
3
Baths:
2 Half: 2
Garages:
2
Width/Depth:
76 ft / 48 ft
Foundation:
Crawl Space Foundation, Optional Basement Foundation, Optional Concrete Slab Foundation
View typical construction drawing >
© copyright by designer
Main Level Floor Plan:
© copyright by designer
Upper level floor plan:
© copyright by designer
Optional Basement Foundation:
Similar plans:
0109
Add to Favorites
Purchase Plans
House Plan Pricing
PDF BID SET
$800.00
PDF Construction Set - 1 Build
$1,000.00
4 sets
$1,085.00
5 sets
$1,130.00
8 sets
$1,240.00
Cad Files
$1,900.00
More details about our plan packages
Foundation Options
Crawl Space Foundation
$0.00
Optional Concrete Slab Foundation
$150.00
Optional Basement Foundation
$175.00
Additional Plan Options
ADD PDF TO PRINT ORDER
$125.00
Right Reading Reverse Plans
$150.00
Materials List
$90.00
Mirror Reverse Set
$90.00
Plan Details
General House Information
1.5
Number of Stories:
76' 0"
Width:
48' 0"
Depth:
Single
Dwelling Number:
1st Floor
Bonus Access:
Exterior Style
Florida
Old House Classics
Cottage
Southern
Facade
Brick/Siding
Number of Rooms
3
Bedrooms:
2
Full Baths:
2
Half Baths:
Finished Square Footage
1,253 Sq. Ft.
Main Level:
522 Sq. Ft.
Upper Level:
1,775 Sq. Ft.
Total:
Unfinished Square Footage
484 Sq. Ft.
Garage:
176 Sq. Ft.
Storage:
684 Sq. Ft.
Porch:
369 Sq. Ft.
Bonus Room:
GARAGE
Side
Garage Location:
2
Garage Size:
Foundation
Crawl Space Foundation
Optional Basement Foundation
Optional Concrete Slab Foundation
House And Ceiling Heights
10'
First Floor Ceiling:
8'
Second Floor Ceiling:
26' 0"
Maximum House Height:
Framing Information
Stick
Roof Framing:
2x6
Exterior Wall Framing:
Roof Pitch
10:12
Primary:
Insulation (R)
19
Exterior Wall:
0
Interior Wall:
38
Ceiling:
19
Floor:
Number of Rooms
3
Bedrooms:
2
Full Baths:
2
Half Baths:
Key Features
• Attached
• Basement
• Bonus Room
• Breezeway
• Butler's Pantry
• Courtyard
• Covered Front Porch
• Covered Rear Porch
• Crawlspace
• Dining Room
• Double Vanity Sink
• Fireplace
• Foyer
• Front Porch
• Kitchen Island
• Laundry 1st Fl
• Loft / Balcony
• Master Bdrm Main Floor
• Mud Room
• Open Floor Plan
• Peninsula / Eating Bar
• Rear Porch
• Rec Room
• Screened Porch/Sunroom
• Separate Tub and Shower
• Side-entry
• Sitting Area
• Slab
• Split Bedrooms
• Storage Space
• Suited for corner lot
• Suited for view lot
• Unfinished Space
• Vaulted Ceilings
• Walk-in Closet
• With Living Space
• Workshop
• Wraparound Porch
Plan: 1723, 1.5 story, 1,775 total square footage
Close