Breland & Farmer Home Designs
Home
Advanced House Plan Search
Architectural Styles
House Plan Collections
About Us
Contact Us
Sign Up
Log In
Breland & Farmer Home Designs
Log In
|
Register
|
Cart
Place your order by phone and receive a 20% discount:
(800) 662-8262
Breland & Farmer Home Designs
Home
Advanced Search
Architectural Styles
Our Collections
About Us
Contact Us
Plan Details
|
Save Plan
|
Print Plan
|
Modify Plan
|
Reverse Plan
|
Return to Your Search
Details
|
Save
|
See Reverse
|
3D
|
Modify
|
Back to Search
See all 4 photos and rear view
Photographs may reflect modified homes
© copyright by designer
Plan: 1810 Crestview - 1810
Plan Specification
Total Square Footage:
1,880
Bedrooms:
3
Baths:
2 Half: 0
Garages:
2
Width/Depth:
74 ft / 36 ft
Foundation:
Concrete Slab Foundation, Crawlspac
View typical construction drawing >
© copyright by designer
First Floor Plan:
© copyright by designer
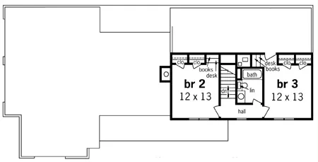
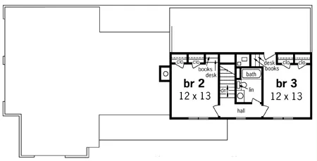
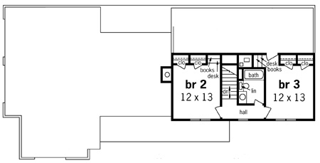
Second Floor Plan:
Similar plans:
1836
,
1831
Add to Favorites
Purchase Plans
House Plan Pricing
PDF BID SET
$800.00
PDF Construction Set - 1 Build
$1,000.00
4 sets
$1,085.00
5 sets
$1,130.00
8 sets
$1,240.00
Cad Files
$1,900.00
More details about our plan packages
Foundation Options
Concrete Slab Foundation
$0.00
Crawlspac
$175.00
Additional Plan Options
ADD PDF TO PRINT ORDER
$125.00
Materials List
$90.00
Mirror Reverse Set
$90.00
Plan Details
General House Information
2
Number of Stories:
74' 0"
Width:
36' 0"
Depth:
Single
Dwelling Number:
Exterior Style
Old House Classics
Country
Southern
Traditional
Facade
Brick
Siding
Stone
Number of Rooms
3
Bedrooms:
2
Full Baths:
Finished Square Footage
1,880 Sq. Ft.
Total:
Unfinished Square Footage
550 Sq. Ft.
Garage:
212 Sq. Ft.
Storage:
204 Sq. Ft.
Porch:
GARAGE
Side
Garage Location:
2
Garage Size:
Foundation
Concrete Slab Foundation
Crawlspac
House And Ceiling Heights
8
First Floor Ceiling:
8
Second Floor Ceiling:
26' 0"
Maximum House Height:
Framing Information
Stick
Roof Framing:
2x6
Exterior Wall Framing:
Roof Pitch
10/12
Primary:
Insulation (R)
19
Exterior Wall:
0
Interior Wall:
38
Ceiling:
19
Floor:
Number of Rooms
3
Bedrooms:
2
Full Baths:
Key Features
• Attached
• Crawlspace
• Front Porch
• Slab
• Suited for corner lot
Plan: 1810, 2 story, 1,880 total square footage
Close