Breland & Farmer Home Designs
Home
Advanced House Plan Search
Architectural Styles
House Plan Collections
About Us
Contact Us
Sign Up
Log In
Breland & Farmer Home Designs
Log In
|
Register
|
Cart
Place your order by phone and receive a 20% discount:
(800) 662-8262
Breland & Farmer Home Designs
Home
Advanced Search
Architectural Styles
Our Collections
About Us
Contact Us
Plan Details
|
Save Plan
|
Print Plan
|
Modify Plan
|
Reverse Plan
|
Return to Your Search
Details
|
Save
|
See Reverse
|
3D
|
Modify
|
Back to Search
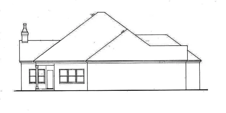
See all 6 photos and rear view
Photographs may reflect modified homes
© copyright by designer
Plan: 1824 Piketon-1824
Plan Specification
Total Square Footage:
1,891
Main Level:
1,891
Bedrooms:
3
Baths:
2 Half: 0
Garages:
2
Width/Depth:
49 ft / 64 ft
Foundation:
Concrete Slab Foundation, Crawlspac
View typical construction drawing >
© copyright by designer
First Floor Plan:
Similar plans:
1908
Add to Favorites
Purchase Plans
House Plan Pricing
PDF BID SET
$800.00
PDF Construction Set - 1 Build
$1,000.00
4 sets
$1,085.00
5 sets
$1,130.00
8 sets
$1,240.00
Cad Files
$1,900.00
More details about our plan packages
Foundation Options
Concrete Slab Foundation
$0.00
Crawlspac
$175.00
Additional Plan Options
ADD PDF TO PRINT ORDER
$125.00
Materials List
$90.00
Additional copies of materials list
$15.00
Mirror Reverse Set
$90.00
Plan Details
General House Information
1
Number of Stories:
49' 0"
Width:
64' 0"
Depth:
Single
Dwelling Number:
None
Bonus Access:
Exterior Style
Old House Classics
Cottage
European
Southern
Traditional
Facade
Brick
Number of Rooms
3
Bedrooms:
2
Full Baths:
Finished Square Footage
1,891 Sq. Ft.
Main Level:
1,891 Sq. Ft.
Total:
Unfinished Square Footage
720 Sq. Ft.
Garage:
GARAGE
Front
Garage Location:
2
Garage Size:
Foundation
Concrete Slab Foundation
Crawlspac
House And Ceiling Heights
8
First Floor Ceiling:
25' 0"
Maximum House Height:
Framing Information
Stick
Roof Framing:
2x6
Exterior Wall Framing:
Roof Pitch
9/12
Primary:
Roof Load
20
Live:
10
Dead:
Insulation (R)
19
Exterior Wall:
0
Interior Wall:
38
Ceiling:
19
Floor:
Number of Rooms
3
Bedrooms:
2
Full Baths:
Key Features
• Attached
• Courtyard
• Covered Front Porch
• Covered Rear Porch
• Crawlspace
• Family Room
• Front Porch
• Front-entry
• Laundry 1st Fl
• Master Bdrm Main Floor
• Slab
• Suited for narrow lot
Plan: 1824, 1 story, 1,891 total square footage
Close