Breland & Farmer Home Designs
Home
Advanced House Plan Search
Architectural Styles
House Plan Collections
About Us
Contact Us
Sign Up
Log In
Breland & Farmer Home Designs
Log In
|
Register
|
Cart
Place your order by phone and receive a 20% discount:
(800) 662-8262
Breland & Farmer Home Designs
Home
Advanced Search
Architectural Styles
Our Collections
About Us
Contact Us
Plan Details
|
Save Plan
|
Print Plan
|
Modify Plan
|
Reverse Plan
|
Return to Your Search
Details
|
Save
|
See Reverse
|
3D
|
Modify
|
Back to Search
See all 10 photos and rear view
Photographs may reflect modified homes
© copyright by designer
Plan: 2023 Mimosa Lane - 2023
Plan Specification
Total Square Footage:
2,006
Main Level:
2,006
Bonus:
994
Bedrooms:
3
Baths:
2 Half: 1
Garages:
2
Width/Depth:
76 ft / 62 ft
Foundation:
Concrete Slab Foundation
View typical construction drawing >
© copyright by designer
Main Level Floor Plan:
© copyright by designer
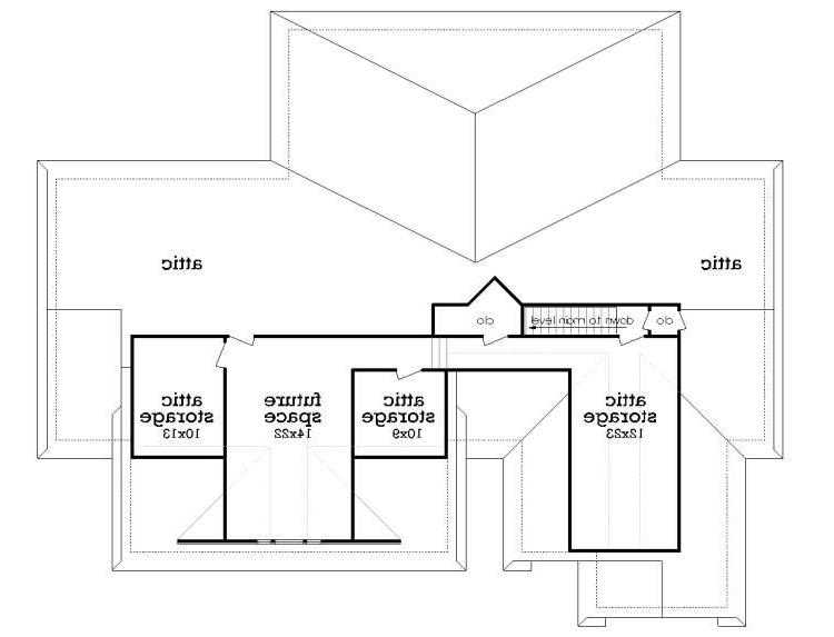
Upper Level Future Space:
Add to Favorites
Purchase Plans
House Plan Pricing
PDF BID SET
$900.00
PDF Construction Set - 1 Build
$1,100.00
4 sets
$1,185.00
5 sets
$1,230.00
8 sets
$1,340.00
Cad Files
$2,100.00
More details about our plan packages
Foundation Options
Concrete Slab Foundation
$0.00
Additional Plan Options
ADD PDF TO PRINT ORDER
$125.00
Mirror Reverse Set
$90.00
Plan Details
General House Information
1
Number of Stories:
76' 0"
Width:
62' 0"
Depth:
Single
Dwelling Number:
Exterior Style
Budget
Builders
Craftsman
Ranch
Southern
Facade
Brick
Siding
Stone
Number of Rooms
3
Bedrooms:
2
Full Baths:
1
Half Baths:
Finished Square Footage
2,006 Sq. Ft.
Main Level:
2,006 Sq. Ft.
Total:
Unfinished Square Footage
550 Sq. Ft.
Garage:
84 Sq. Ft.
Storage:
884 Sq. Ft.
Porch:
994 Sq. Ft.
Bonus Room:
GARAGE
Side
Garage Location:
2
Garage Size:
Foundation
Concrete Slab Foundation
House And Ceiling Heights
8
First Floor Ceiling:
25' 6"
Maximum House Height:
Framing Information
Stick
Roof Framing:
2x4
Exterior Wall Framing:
Roof Pitch
9:12
Primary:
Insulation (R)
11
Exterior Wall:
0
Interior Wall:
38
Ceiling:
19
Floor:
Number of Rooms
3
Bedrooms:
2
Full Baths:
1
Half Baths:
Key Features
• Attached
• Bonus Room
• Butler's Pantry
• Country Kitchen
• Covered Front Porch
• Covered Rear Porch
• Dining Room
• Double Vanity Sink
• Foyer
• Front Porch
• Great Room
• Kitchen Island
• Laundry 1st Fl
• Master Bdrm Main Floor
• Mud Room
• Nook / Breakfast Area
• Open Floor Plan
• Oversized
• Rear Porch
• Separate Tub and Shower
• Side-entry
• Slab
• Split Bedrooms
• Storage Space
• Suited for corner lot
• Suited for view lot
• Unfinished Space
• Vaulted Ceilings
• Walk-in Closet
• Walk-in Pantry
• Wraparound Porch
Plan: 2023, 1 story, 2,006 total square footage
Close