Breland & Farmer Home Designs
Home
Advanced House Plan Search
Architectural Styles
House Plan Collections
About Us
Contact Us
Sign Up
Log In
Breland & Farmer Home Designs
Log In
|
Register
|
Cart
Place your order by phone and receive a 20% discount:
(800) 662-8262
Breland & Farmer Home Designs
Home
Advanced Search
Architectural Styles
Our Collections
About Us
Contact Us
Plan Details
|
Save Plan
|
Print Plan
|
Modify Plan
|
Reverse Plan
|
Return to Your Search
Details
|
Save
|
See Reverse
|
3D
|
Modify
|
Back to Search
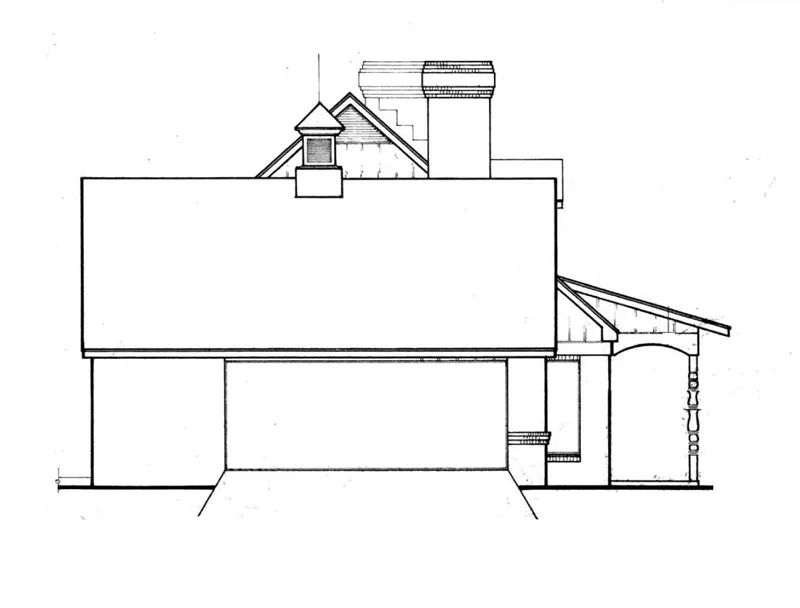
See all 7 photos and rear view
Photographs may reflect modified homes
© copyright by designer
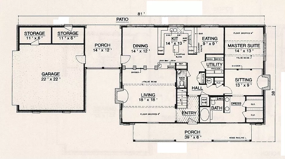
Plan: 2202 Bristol House - 2202
Plan Specification
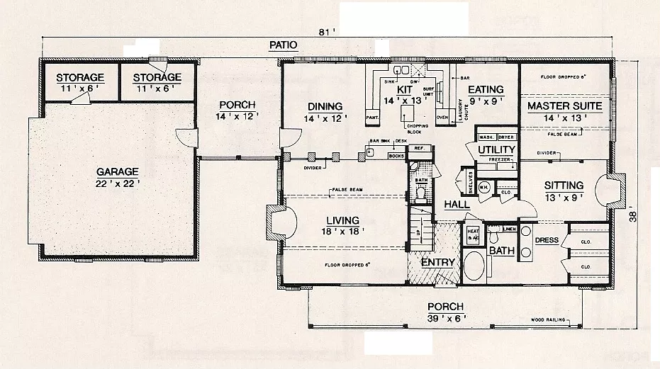
Total Square Footage:
2,254
Main Level:
1,504
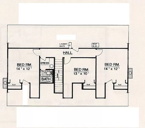
Second Level:
750
Bedrooms:
4
Baths:
2 Half: 1
Garages:
2
Width/Depth:
81 ft / 38 ft
Foundation:
Concrete Slab Foundation, Crawlspac
View typical construction drawing >
© copyright by designer
First Floor Plan:
© copyright by designer
Second Floor Plan:
Add to Favorites
Purchase Plans
House Plan Pricing
PDF BID SET
$900.00
PDF Construction Set - 1 Build
$1,100.00
4 sets
$1,185.00
5 sets
$1,230.00
8 sets
$1,340.00
Cad Files
$2,100.00
More details about our plan packages
Foundation Options
Concrete Slab Foundation
$0.00
Crawlspac
$175.00
Additional Plan Options
ADD PDF TO PRINT ORDER
$125.00
Materials List
$90.00
Additional copies of materials list
$15.00
Mirror Reverse Set
$90.00
Plan Details
General House Information
1.5
Number of Stories:
81' 0"
Width:
38' 0"
Depth:
Single
Dwelling Number:
Exterior Style
Country
Southern
Traditional
Facade
Brick
Siding
Number of Rooms
4
Bedrooms:
2
Full Baths:
1
Half Baths:
Finished Square Footage
1,504 Sq. Ft.
Main Level:
750 Sq. Ft.
Upper Level:
2,254 Sq. Ft.
Total:
Unfinished Square Footage
484 Sq. Ft.
Garage:
132 Sq. Ft.
Storage:
402 Sq. Ft.
Porch:
GARAGE
Side
Garage Location:
2
Garage Size:
Foundation
Concrete Slab Foundation
Crawlspac
House And Ceiling Heights
8
First Floor Ceiling:
8
Second Floor Ceiling:
30' 0"
Maximum House Height:
Framing Information
Stick
Roof Framing:
2x4
Exterior Wall Framing:
Roof Pitch
10/12
Primary:
Insulation (R)
11
Exterior Wall:
0
Interior Wall:
19
Ceiling:
19
Floor:
Number of Rooms
4
Bedrooms:
2
Full Baths:
1
Half Baths:
Key Features
• Attached
• Breezeway
• Country Kitchen
• Covered Front Porch
• Crawlspace
• Dining Room
• Double Vanity Sink
• Fireplace
• Foyer
• Great Room
• His and Hers Master Closets
• Kitchen Island
• Laundry 1st Fl
• Master Bdrm Main Floor
• Nook / Breakfast Area
• Side-entry
• Sitting Area
• Slab
• Split Bedrooms
• Storage Space
• Suited for corner lot
• Walk-in Closet
Plan: 2202, 1.5 story, 2,254 total square footage
Close