Breland & Farmer Home Designs
Home
Advanced House Plan Search
Architectural Styles
House Plan Collections
About Us
Contact Us
Sign Up
Log In
Breland & Farmer Home Designs
Log In
|
Register
|
Cart
Place your order by phone and receive a 20% discount:
(800) 662-8262
Breland & Farmer Home Designs
Home
Advanced Search
Architectural Styles
Our Collections
About Us
Contact Us
Plan Details
|
Save Plan
|
Print Plan
|
Modify Plan
|
Reverse Plan
|
Return to Your Search
Details
|
Save
|
See Reverse
|
3D
|
Modify
|
Back to Search
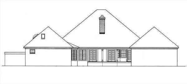
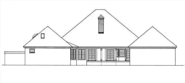
See all 3 photos and rear view
Photographs may reflect modified homes
© copyright by designer
Plan: 2306 Rosedown-2306
Plan Specification
Total Square Footage:
2,394
Main Level:
2,394
Bedrooms:
3
Baths:
2 Half: 0
Garages:
2
Width/Depth:
88 ft / 64 ft
Foundation:
Crawl Space Foundation, Optional Concrete Slab Foundation
View typical construction drawing >
© copyright by designer
First Floor Plan:
Similar plans:
2310
,
2302
Add to Favorites
Purchase Plans
House Plan Pricing
PDF BID SET
$900.00
PDF Construction Set - 1 Build
$1,100.00
4 sets
$1,185.00
5 sets
$1,230.00
8 sets
$1,340.00
Cad Files
$2,100.00
More details about our plan packages
Foundation Options
Crawl Space Foundation
$0.00
Optional Concrete Slab Foundation
$150.00
Additional Plan Options
ICF CONCRETE EXTERIOR WALL SYSTEM
$100.00
ADD PDF TO PRINT ORDER
$125.00
Materials List
$90.00
Additional copies of materials list
$15.00
Mirror Reverse Set
$90.00
Plan Details
General House Information
1
Number of Stories:
88' 0"
Width:
64' 0"
Depth:
Single
Dwelling Number:
Exterior Style
Old House Classics
Colonial
Southern
Traditional
Facade
Brick
Stucco
Number of Rooms
3
Bedrooms:
2
Full Baths:
Finished Square Footage
2,394 Sq. Ft.
Main Level:
2,394 Sq. Ft.
Total:
GARAGE
Side
Garage Location:
2
Garage Size:
Foundation
Crawl Space Foundation
Optional Concrete Slab Foundation
Framing Information
2x6
Exterior Wall Framing:
Roof Pitch
10/12
Primary:
Insulation (R)
Per IRC Climate Zones
Number of Rooms
3
Bedrooms:
2
Full Baths:
Key Features
• Attached
• Crawlspace
• Front Porch
• Slab
• Suited for corner lot
Plan: 2306, 1 story, 2,394 total square footage
Close