Breland & Farmer Home Designs American Institute of Building Design Breland & Farmer Home Designs

        cart
Details |  Save | See Reverse | 3D | Modify | Back to Search
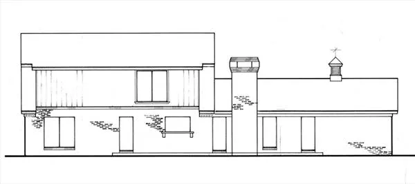
Front Rendering Right Side Elevation Rear Elevation Left side elevation First Floor Plan Upper level floor plan
See all 6 photos and rear view
Photographs may reflect modified homes
© copyright by designer

Plan: 2402 Cambridge House - 2402

Plan Specification
Total Square Footage: 2,440
Main Level: 1,386
Second Level: 1,054
Bedrooms: 4
Baths: 3 Half: 0
Garages: 2
Width/Depth: 72 ft / 31 ft
Foundation: Concrete Slab Foundation, Optional Basement Foundation
© copyright by designer 
First Floor Plan:
First Floor Plan
© copyright by designer 
Upper level floor plan:
Upper level floor plan
Add to Favorites
Purchase Plans
House Plan Pricing
$950.00
$1,200.00
$1,235.00
$1,280.00
$1,390.00
$2,200.00
Foundation Options
$0.00
$175.00
Additional Plan Options
$125.00
$90.00
$15.00
$90.00
Plan Details
General House Information
2
Number of Stories:
72' 0"
Width:
31' 0"
Depth:
Single
Dwelling Number:
Exterior Style
Cape Cod
Colonial
Traditional
Facade
Brick
Siding
Number of Rooms
4
Bedrooms:
3
Full Baths:
Finished Square Footage
1,386 Sq. Ft.
Main Level:
1,054 Sq. Ft.
Upper Level:
2,440 Sq. Ft.
Total:
Unfinished Square Footage
484 Sq. Ft.
Garage:
110 Sq. Ft.
Storage:
98 Sq. Ft.
Porch:
GARAGE
Front
Garage Location:
2
Garage Size:
Foundation
Concrete Slab Foundation
Optional Basement Foundation
House And Ceiling Heights
8
First Floor Ceiling:
8
Second Floor Ceiling:
31' 0"
Maximum House Height:
Framing Information
Stick
Roof Framing:
2x4
Exterior Wall Framing:
Roof Pitch
5/12
Primary:
Insulation (R)
11
Exterior Wall:
0
Interior Wall:
19
Ceiling:
19
Floor:
Number of Rooms
4
Bedrooms:
3
Full Baths:
Key Features
• 2 Master Suites
• Attached
• Basement
• Breezeway
• Country Kitchen
• Covered Front Porch
• Dining Room
• Double Vanity Sink
• Family Room
• Fireplace
• Formal LR
• Foyer
• Front-entry
• Guest Suite
• Kitchen Island
• Laundry 1st Fl
• Master Bdrm Upstairs
• Sitting Area
• Slab
• Split Bedrooms
• Storage Space
• Walk-in Closet