Breland & Farmer Home Designs
Home
Advanced House Plan Search
Architectural Styles
House Plan Collections
About Us
Contact Us
Sign Up
Log In
Breland & Farmer Home Designs
Log In
|
Register
|
Cart
Place your order by phone and receive a 20% discount:
(800) 662-8262
Breland & Farmer Home Designs
Home
Advanced Search
Architectural Styles
Our Collections
About Us
Contact Us
Plan Details
|
Save Plan
|
Print Plan
|
Modify Plan
|
Reverse Plan
|
Return to Your Search
Details
|
Save
|
See Reverse
|
3D
|
Modify
|
Back to Search
See all 4 photos and rear view
Photographs may reflect modified homes
© copyright by designer
Plan: 6552-3 Cedarlake3 - 6552-3
Plan Specification
Total Entire Building:
4,941
Total Living Per Unit:
4,941
Main Level:
3,198
Second Level:
1,743
Bedrooms:
0
Baths:
0 Half: 0
Garages:
0
Width/Depth:
96 ft / 42 ft
Foundation:
Concrete Slab Foundation
View typical construction drawing >
© copyright by designer
First Floor Plan:
© copyright by designer
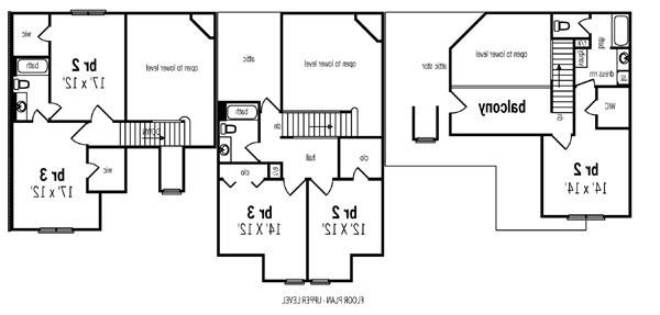
Second Floor Plan:
Similar plans:
6289-5
,
5400
Add to Favorites
Purchase Plans
House Plan Pricing
PDF BID SET
$2,200.00
PDF Construction Set - 1 Build
$2,900.00
4 sets
$3,400.00
5 sets
$3,600.00
8 sets
$3,700.00
More details about our plan packages
Foundation Options
Concrete Slab Foundation
$0.00
Additional Plan Options
ADD PDF TO PRINT ORDER
$125.00
Mirror Reverse Set
$90.00
Plan Details
General House Information
2
Number of Stories:
96' 0"
Width:
42' 0"
Depth:
Multi-Family
Dwelling Number:
Exterior Style
Luxury
Traditional
Facade
Brick
Stucco
Finished Square Footage
3,198 Sq. Ft.
Main Level:
1,743 Sq. Ft.
Upper Level:
4,941 Sq. Ft.
Total:
Unfinished Square Footage
140 Sq. Ft.
Porch:
GARAGE
0
Garage Size:
Foundation
Concrete Slab Foundation
House And Ceiling Heights
8
First Floor Ceiling:
8
Second Floor Ceiling:
34' 0"
Maximum House Height:
Framing Information
Stick
Roof Framing:
2x4
Exterior Wall Framing:
Roof Pitch
10/12
Primary:
Insulation (R)
11
Exterior Wall:
0
Interior Wall:
19
Ceiling:
0
Floor:
Key Features
Plan: 6552-3, 2 story, 4,941 total square footage
Close